办公室矩形几何空间创意装修设计
位于巴塞罗纳,其办公装修设计意图是为了代表他们的价值观。一方面,试图利用可回收材料,另一方面,利用了原始工业建筑的所有要素,后来使用玻璃作为水的寓言,并与其他材料进行增强和对比。
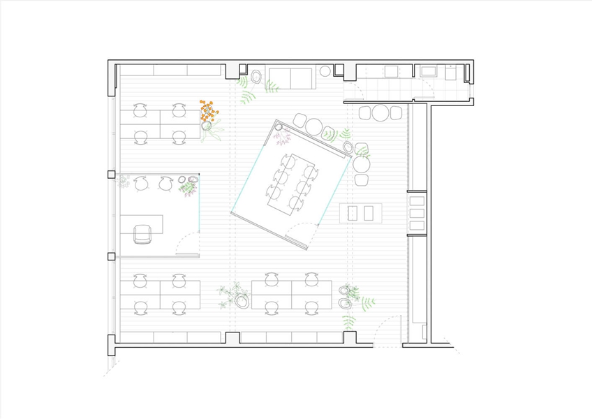
由透明的地板组成房间较初始状态,所以装修公司决定在那里引入两个矩形盒子。一个盒子是管理办公室的,另一个是会议室的。这两个箱子才对开放空间进行了分配。值得一提的是保存了之前原始元素,如:混凝土柱、金属和木地板的作用。
白色的油漆充满了自然光的空间,而绿色的天花板是根据公司办公室的身份来参考大自然的。后来并非说不重要的,由于LED灯成本低,形式简单,因此在办公室的每一张桌子上都被用作悬挂灯。如下欣赏办公室矩形几何空间创意装修设计实景图!




凯悦装饰,主要提供办公室设计/办公室装修一站式服务,16年专注办公设计装修,力求为客户提供一站式省心服务,塑造企业经营环境,创造企业价值。若您还想了解更多关于办公空间设计的相关资讯,或者需要一站式装修公司的需求,欢迎致电凯悦装饰24小时服务热线:400-616-3667,或点击在线咨询了解更多详细信息!
--------由www.pyie.cn编辑发布,转载请注明出处
上一篇:
有这样办公楼装修简直置身于大自然

