办公装修设计将构建多姿多彩场景工作室
接这个办公装修设计项目时,设计师重要是在尽可能多地保存现有空间的结构元素方面,尽可能地保持可持续性。努力?;と匀惶峁┘壑档姆智?,同时利用现有的部分抛光混凝土地板和白色天花板作为材料调色板的基础。

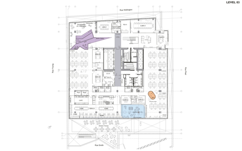
客户希望服务区成为办公室公共空间的中间支柱,有许多非正式休息室、白板墙、演示空间和娱乐设施,这些设施都是为举办围绕着它的活动而设计的。每一个划定的空间都有一个特定的功能,紫色的明星容纳了一个媒体画廊来展示广泛的企业作品,同时也是通往一个多功能展示区的通道,其中有看台和投影屏幕。在漂白剂区,一个综合厨房和酒吧加强了举办公共活动的设施,而一个更正式的厨房提供了一个室外露台。

设计师再利用几何形状和形状开发了一系列的豆荚,从而打破了广阔的办公空间。战略上放置的豆荚定义了一系列亲密的区域,同时保持了敞开空间的概念。每个区域就像一个单独的邻里,由形状和颜色之一地识别出来,并从定义它的对象中派生出它的名称。地毯提供了一种涟漪效应,仿佛每个独特的物体都被扔进了空间,色彩图案表示从一个区域到另一个区域的过渡,这是一个寻找方向的原则。如下欣赏办公室装修实景图!








若您还想了解更多关于办公空间设计的相关资讯,或者需要一站式装修公司的需求,欢迎致电凯悦装饰24小时服务联系电话:135-7052-9892,或点击在线咨询了解更多详细信息!
上一篇:
办公室装修公司实现空间以技术为导向创新
下一篇:
公司办公室装修改造成创造性空间氛围设计

