工作室装修-打造鼓舞人心方便协作交流环境
企业要求设计简报很简单--能提供一个鼓舞人心的工作室装修空间,以鼓励协作与交流。设计师花了很多时间了解它们是如何工作的,以及提高生产力和福利所需的是什么?
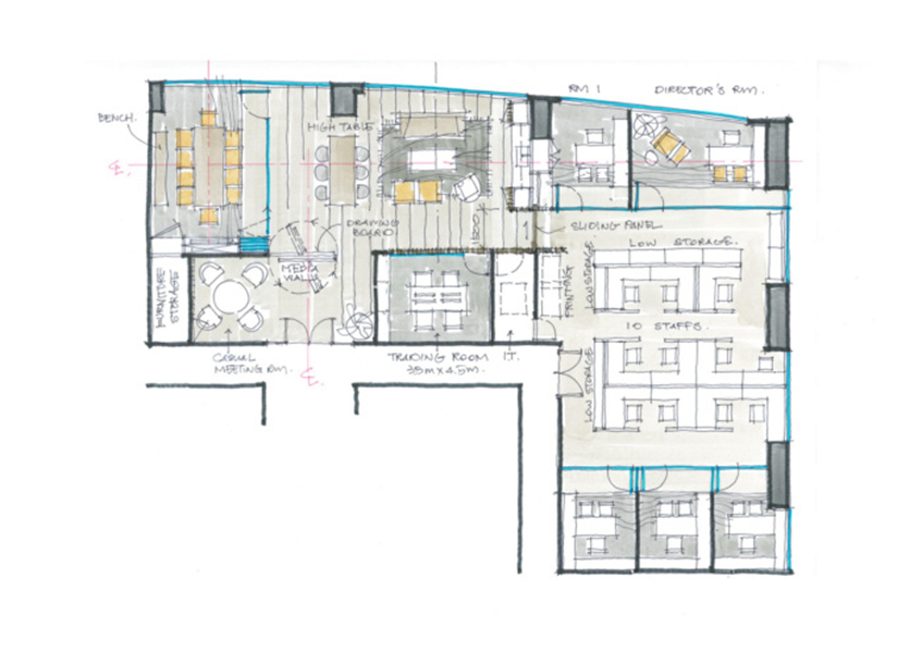
再把概念植入整个足迹分成两个相等的空间部分。
一部分:是在较放松的宾至如归的气氛中迎接客人和娱乐。以休息区为中点,围绕功能空间,包括会议室、交易室、呼叫空间和厨房,以人为导向的设计将办公室体验带入了一个新的适宜水平。
在会议室的滑动面板允许结合休息区的活动发生。我们还故意忽略了接待处,但作为回报,与数字墙面数字会议角显示的形象蒙太奇和公司的标志,就像一个艺术装置。
二部分:是工作人员环境、主任室和管理层办公室。
在俯瞰标志性的维多利亚港及九龙半岛城景时,敞开规划策略,不但可让人透过较大限度的日光照射,而且可确保人们能看到令人安心的壮观及宁静的景色。我们还帮助分配客户的艺术收藏,以实现和谐氛围。如下欣赏装修效果图!








若您还想了解更多关于办公空间设计的相关资讯,或者需要一站式装修公司的需求,欢迎致电凯悦装饰24小时服务联系电话:400-616-3667,或点击在线咨询了解更多详细信息!
下一篇:
办公楼装修公司-将空间设计以办公效率为主

